Hướng dẫn sử dụng

Loại A
Với kiểu xe nâng lấy hàng dùng cho nhà kho, có thể nâng hàng với tải trọng nặng và người điều khiển xe lấy hàng được nâng cùng (người lấy hàng ngồi trên xe điều khiển để lấy hàng)

Loại B
Với kiểu xe nâng lấy hàng trong nhà kho, có thể nâng hàng với tải trọng nặng nhưng người điều khiển xe lấy hàng không được nâng cùng với hàng (người lấy hàng ở dưới điều khiển xe nâng lấy hàng)

Loại C
Nhà kho có lối đi giữa các dãy kệ dài & hẹp, người lấy hàng chạy xe và điều khiển xe để lấy hàng.
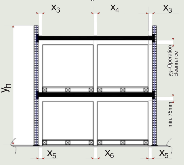
Sự sắp xếp các khoang kệ


Thiết bị lấy hàng

